

半门式起重机,又叫半龙门吊,是针对中小起重量(1-20t)、中小跨度(7.5-22m)设计制造的一款具有超高性价比的门式起重机,适用于具有一侧承重梁的室内或室外。
一、半龙门吊的介绍
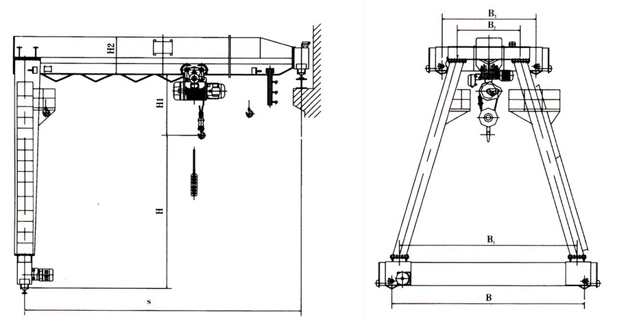
半龙门吊起重机是一种常见的起重设备,通常用于吊装和搬运重量较大的物体。它由支架、横梁、起重机械、电气系统等组成。
支架通常是由钢材制成的,可以提供足够的支撑力,以确保整个设备的稳定性。横梁是连接两个支架的横向结构,通常由钢管或钢板制成,可以承受重物的重量。
起重机械是半龙门吊起重机的主要组成部分,它包括起重机构、大车和小车。起重机构通常由电动葫芦或手动葫芦、钢丝绳等组成,可以提供起重和下降功能。大车和小车是起重机的移动部分,它们可以沿着横梁和支架移动,以便将重物从一个位置移动到另一个位置。
电气系统是半龙门吊起重机的控制中心,它由电控柜、控制按钮、电缆等组成。通过控制按钮,操作员可以控制起重机的起升、下降、移动等功能。电缆连接起重机和电控柜,为起重机提供电源和信号传输。

半龙门吊起重机可以广泛应用于建筑工地、码头、工厂等场所,可以有效地提高物料搬运和装卸的效率。
半龙门吊起重机是一种高强度的机械设备,为了保证其正常运行和延长使用寿命,还需要进行定期的维护保养。

二、半龙门吊起重机的维护和保养
1、日常巡检:每天对半龙门吊起重机进行巡检,检查电气设备、机械部件、安全装置是否正常运行。特别注意检查起重机的钢丝绳是否有断裂、变形、磨损等情况。
2、清洁半龙门吊起重机:定期对半龙门吊起重机进行清洁,特别是钢丝绳、滑轮、齿轮等机械部件要保持清洁和润滑。
3、起重机械的维护:定期检查起重机械,如葫芦、大车、小车等部件是否正常运转,有无异响、松动、磨损等情况。
4、安全装置的检查:定期检查安全装置是否完好,如限位器、重载保护装置、断电保护装置等,确保其正常运行。
5、电气设备的维护:定期检查电气设备,如电缆、开关、接触器等是否正常运行,有无短路、断路、漏电等情况。
6、定期保养:按照规定的周期对半龙门吊起重机进行保养,如更换润滑油、检查电线连接等。
总之,对于半龙门吊起重机的维护保养,需要进行定期的检查、清洁和维护,确保其正常运行和安全使用。如果发现任何问题,应及时处理,以避免出现更大的故障。